Your Custom Built Home near Ross-on-Wye

Note: All photo-realistic renderings are provided for illustration purposes only.

House Type A - The Haven

(Plots 8 and 4)

Plot 8

Ground Floor:

Type A Plan: ground floor

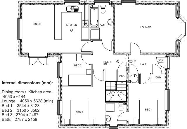
First Floor:

Type A Plan: first floor


House Type C - The Firs

(Plot 7)

Plot 7
Plot 7 kitchen
Plot 7 living room

Ground Floor:

Type C plan

First Floor:

Type C first floor


House Type D - The Acorns

(Plot 6)

Plot 6
Type D plan


House Type E - The Birch

(Plot 5)

Plot 7
(Note: this illustration is of Plot 7. Plot 5 is similar externally but garage is to the right of the property.)

Ground Floor:

Type E plan

First Floor:

Type C first floor